Labyrinth Living
Location: Kansas City, Kansas
Studio: Arch 608: Architecture Design V
Professor: Shannon Criss
Type: Master Planning and Affordable Housing
Award: Selected as best Arch 608 studio project in juried student exhibition
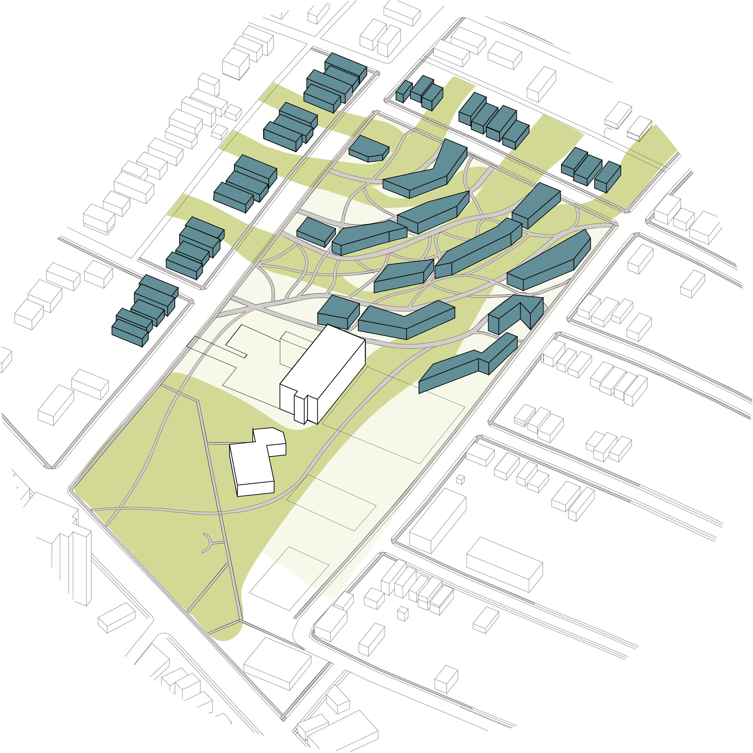
Project Scope: When Bethany Hospital was torn down, the city of Kansas City, Kansas knew that they wanted to infill the site with affordable housing that had a focus on inter-generational living. Posed with the project of master planning 8 acres and the surrounding neighborhood was the bases of the design. The design concept came through looking at how to navigate through a site with a 80 foot drop from one corner to the other. The concept of the housing terracing down the hill and conforming to the hill provided amble southern exposure light to every building and easy navigation of the site. This also extended to the green bands that extend onto the adjacent strip lots, each of these green spaces though out the site was programed for the community as well as the neighborhood.
 
             
             
             
             
             
             
             
             
             
             
             
             
             
            